エリア:吹田市江の木町2-5






江坂グランドハイツ北の概要
| エリア | 吹田市江の木町2-5 | ||||
| 築年数 | 1977年5月 | ||||
| 構造 | 鉄筋コンクリート造 | ||||
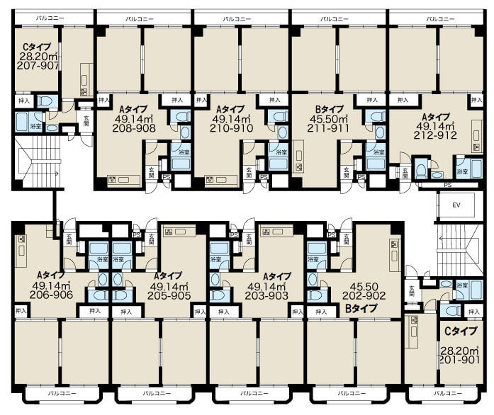
| 総階層 | 9階層 | ||||
| 総戸数 | 全87室 | ||||
| 交通 | 地下鉄御堂筋線 江坂駅 徒歩5分 | ||||
| 駐車場 | 無 | ||||
| 共用設備 | エレベーター 自転車置場(有料) 防犯カメラ各所設置 管理人常駐 | ||||
| 室内設備 | エアコン キッチン(ガス) ガス湯沸かし器 浴室(ガス) 洗面化粧台 全室照明器具付 テレビ配線 CATV(地上波のみ無料) インターネット回線(別途加入必要) ※フレッツ光ネクスト auひかり J:COM ▼911号室・803号室・412号室・906号室・612号室・303号室限定 洗濯パン シャンプードレッサー付洗面化粧台 モニター付インターホン エアコン2台 システムキッチン(ガスコンロ3口) ガス給湯器 追炊き機能付ユニットバス 浴室乾燥機 温水洗浄便座 浴室ミストサウナ(大阪ガスミストカワック) ※412・906・612・303号室のみ | ||||
| 担当者 | 梶山 06-6302-3606 | ||||
詳しい物件のご相談は
お問い合わせページへ